
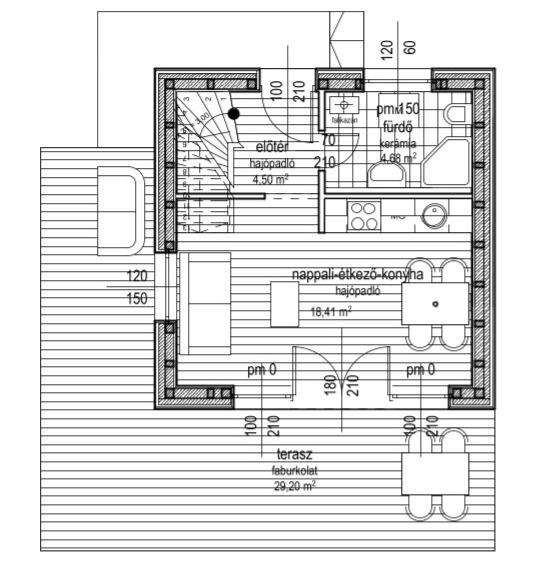
Alapadatok
Alapterület: 40 m² (28 + 12)
Szintek száma: 2
Befoglaló méret: 6 × 6 m
Terasz: igen
Helyiségek:
Előtér
Nappali + étkező + konyha
Szoba
Fürdő
Kinek ajánljuk?
Fiatal házaspároknak, egyedülálló személyeknek vagy nyaralónak.



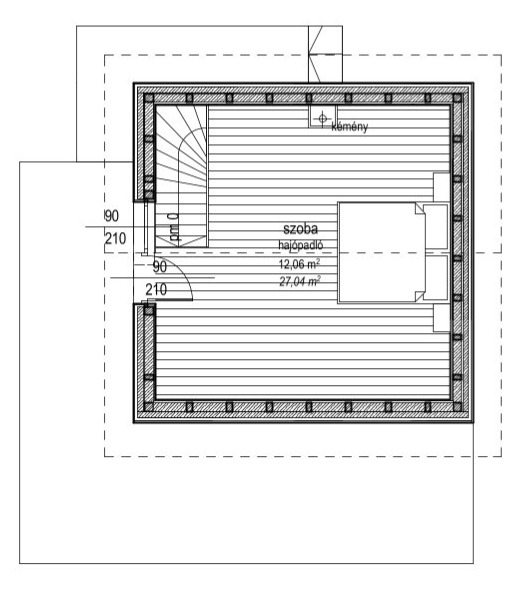
Alapterület: 40 m² (28 + 12)
Szintek száma: 2
Befoglaló méret: 6 × 6 m
Terasz: igen
Helyiségek:
Előtér
Nappali + étkező + konyha
Szoba
Fürdő
Kinek ajánljuk?
Fiatal házaspároknak, egyedülálló személyeknek vagy nyaralónak.

