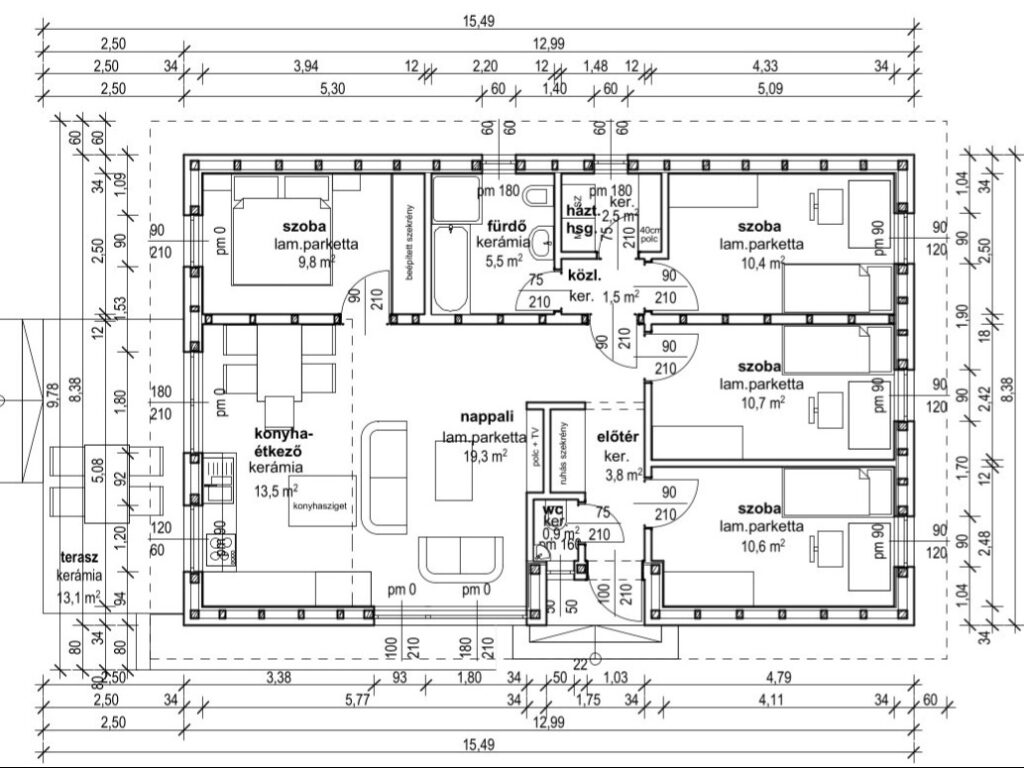
Mező_89

Alapadatok:

Alapterület: 89 m²

Szintek száma: 1

Befoglaló méret: 13 × 8,38 m

Terasz: igen

Helyiségek:

Előtér

4 db Szoba

Fürdő

Háztartási helyiség

Nappali + étkező + konyha

WC

Kiknek ajánljuk?

2-3 gyermekes családoknak, akik a mediterrán- típusú házakat kedvelik és költséghatékony megoldást keresnek. Jó embereknek, akik kis helyen is elférnek…

Scroll to Top